Joyful Community
China, Shanghai
completed
in 2022
Over the past decade Chinese cities have sprouted dozens of retirement enclaves that quietly radiate a bittersweet utopian aura: gated, age-segregated, medically over-equipped, socially compressed. GN Architects, led by Guan Yiqun, began the 2017’s commission for a 270,000 m² elder-care project on former industrial land 30 km south-west of Shanghai with a blunt refusal of that model. Instead of another inward-facing “seniortopia”, the practice and client agreed to build an open, multi-generational urban fragment that would act as a regional magnet rather than a hospice.

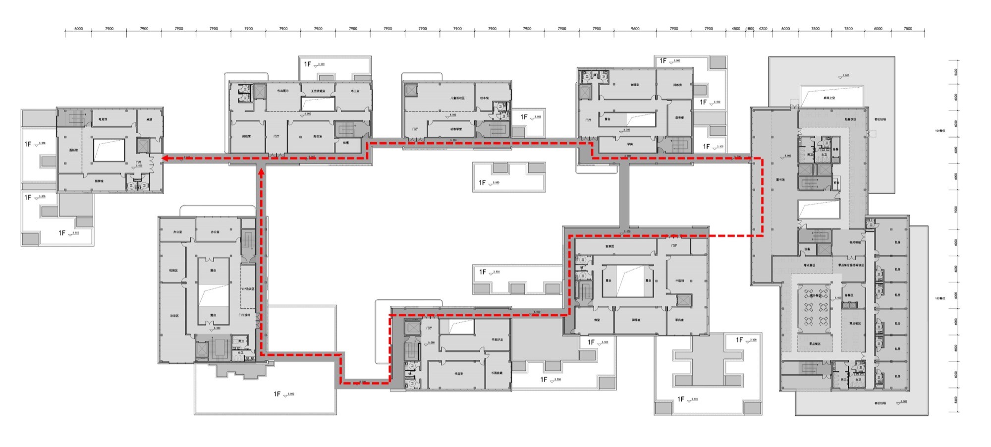
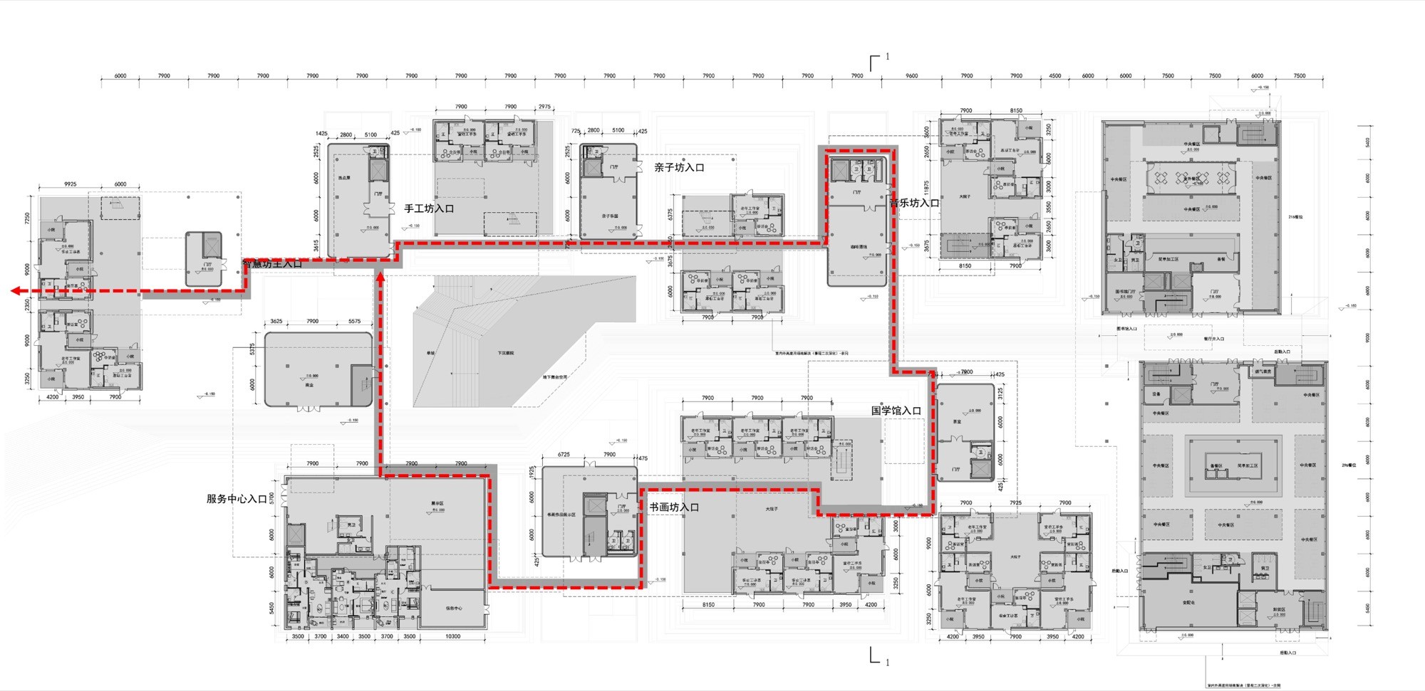
The site sits amid the classic Chinese urban-fringe patchwork of villages, irrigation canals and oversized roads. The masterplan turns this liability into an asset by positioning the entire complex as the missing centre of the wider territory. A horizontal T-shaped spine of public amenities stretches toward the main road while simultaneously plunging deep into the residential fabric, maximising both civic exposure and internal accessibility. Along this spine, 22 loosely stacked, displaced boxes form a porous “village centre” of cafés, clinics, workshops, galleries and performance spaces, each given its own address and independent volume so that it can evolve separately from the whole. Residential clusters are pulled apart into semi-autonomous neighbourhoods, shrinking the managed “private” realm and releasing the interstitial territory to public life.

Three continuous loops bind the fragments: a rooftop running track and glass-walled activity ring in the entrance sports complex, an elevated interest loop threading the second-floor balconies of the village centre boxes, and a ground-level “hidden” covered walkway that slips under overhanging slabs and weaves through a cascade of staggered courtyards. These loops are not merely circulation; they are the primary social condensers, deliberately oversized and left programmatically vague so that they can be colonised by spontaneous occupation.

The architecture cultivates deliberate looseness. Courtyards overlap and interlock, generating unexpected leftover pockets: corner terraces, sky-lit passages, miniature amphitheatres discovered only after completion. Ground-floor studios and transparent glass pavilions are seeded as undefined incubators, already morphing into flower shops, artist residencies, children’s farms and pop-up exhibition spaces. Even the wide corridors of the sports complex have been claimed as aerial galleries and exercise circuits.

What began as an anti-utopian critique has quietly become its opposite: a stubbornly open, continuously editable piece of city that no longer feels like a retirement project at all. The boundary between resident/visitor, old/young, managed/unmanaged keeps dissolving. In an urbanising countryside desperate for genuine public realm, GN has inserted not another walled garden for the elderly, but a functioning town that simply refuses to exclude them.

Comments

(0)
Loading...
Categories
Project Type
Designers
Guan Yiqun Shi Liang Cong Yanfei Shi Zhenglei Yuan Chengxiang Yin Guilin
Other Projects In
Other Photo By